
用户使用需求
利用商业楼,缔造一间集合娱乐和高端体验的会所,协同星中创企业打造辐射大湾区的高科技产业集群,打开全新高端科技的大门。
认识设计师
设计师:黄永相

从事影音智能行业十余年,资深项目设计工程师,擅长家庭影院、全宅智能、空间声学设计、会议多媒体全案集成系统,个人全国案例经手数百间。
工程师:伦家健
佛山赛宾科技有限公司

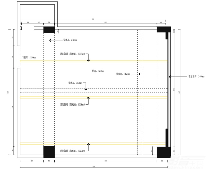
空间信息
面积:长9.69m×宽8.75m×高3.72m
位置:佛山·千灯湖星中创企业会所
影院构建过程,声学/光学处理及特别设计
本案私人KTV系统,是商业办公楼置办的项目,不同的环境对器材及声场的要求是不一样的,且开放与封闭的空间所营造出的音频效果也不尽相同。因此当客户想要缔造一间私人娱乐卡拉OK房时,影音集成公司必须是先确定KTV使用空间在哪里,而此案是利用办公楼的11楼独立空间打造。

确定好了空间位置,就是测量房间比例是否合理。因家庭KTV和家庭影院一样,在装修设计时避免选用房间长宽高比例为整数倍的房间做视听室,否则强烈的驻波会让一切努力前功尽弃,再好的器材在这样的环境也不会有好的声音。本案空间比例经过实地测量,属于绝佳空间的比例。

不是简单的器材堆砌,也不是随随便便听个响声。影音集成公司需要做的是:一站式定制整装高端KTV,既不能像商业KTV一样通俗无趣,又要全面超越商业KTV的效果。这里整合了点歌系统、音响系统和视频系统,再加上氛围灯光系统,无论是音色还是品牌,均符合客户需求。

器材方案站在客户的立场,去考虑卡拉OK的效果设想。例如,对于空间的整体布局想要什么样的氛围、预计想达到什么样的成效等。影音集成公司先用图纸形式,对布线、平面、效果等一一画好详细的图纸,让成品跃然纸上,让客户提前了解自己的KTV室的最终完成效果。

设计与调试心得
通过专业施工单位对整个空间(墙身、表面、天花、地面等)做全面细致化的声学隔音、降噪、吸音处理,并通过家具等室内用品来协助减少驻波。
在有窗户的地方使用双层玻璃,再配合厚重的缎面绒窗帘,达到吸音、隔音的效果。根据门洞尺寸定制专业的声学隔音门,有效阻隔45dB,让声场处理极致追求专业级别。


调音方面,总体方向是唱歌底气不足的加中高频,突出唱歌者声音的明亮,底气较足的减低频,避免声音太大而失真。女人加低频声音厚实,男人加高频声音通透,调音时需分别监听左右声道,用混响美化歌声,对非专业歌唱者应该适当加重混响,以掩盖噪音和发声中的缺陷。

灯光设计作为KTV舞池设计的一部分,是用来描绘、渲染舞台,主要运用灯光的明暗、色彩或光线的分布,创造出种种组合光线,增强舞池效果。KTV舞池灯光,首先要考虑KTV内的基本照明,KTV舞池灯光风格各异,应根据KTV空间大小及功能需要来选择,可典雅静谧,可华丽热烈。

KTV布局设计,主要以实用为主,本案充分利用空间并兼顾隐私感和氛围感。家具摆放方面,沙发、茶几、工作台(调酒柜)和零食柜等摆位都要方便客户使用。

本案KTV室结合客户需求和设计师经验进行整体设计。设计中能够纵览全局,从使用者的角度分析和思考问题,准确的把握客户定位,用全局意识来配合设计,用设计质量来提升价值,做到“入乎其内,超乎其上”,实现开发理念与设计构思的绝佳融合。

器材列表
音频部分
视易30万首点歌机
视易22英寸点歌屏
Maik-linn前级效果器
Saiibin后级功放×2
JBL旗舰款KTV主音箱×2
Wharfedale ProKTV补音音箱×2
Wharfedale pro低音炮×2
Maik-linn无线麦克风×2
ABL电源时序器
Saibin实木机柜
视频部分
ViewSonic 4K投影机
Swein 150英寸4K透声幕
KTV动感智能灯光系统
Ledshow蜂眼激光灯×2
Ledshow染色图案二合一灯×6
Ledshow 1W全彩激光灯×2
Ledshow八眼摇晃激光灯×2
高亮RGB灯带
灯带灯槽
KTV动感智能灯光系统
视易解码器
声光联动控制器
400W电源×6
灯光墙板

※ 致读者:影音CN所刊案例均为设计师投稿。为保障原作者权益,减少盗图纠纷,案例版面图片均已加水印处理。由此可能影响读者的阅读,特表歉意。
※ 影音中国网原创稿件,未经许可不得转载、节录及改编。