
基本情况简介
用户使用需求
陈先生是80年后的成功业主,对影音是要求极高。
认识设计师
设计师:张利光
广州影音大师副总经理,曾参与CEDIA、THX培训。影音行业经验已经16年,早期做Hi-End系统,热爱古典,Jazz音乐。对影音的音响素质有着苛刻的要求,善于影音室的美学和声学设计,追求极致影音室落地交付效果。
设计公司:广州影音大师
空间信息及投入
位置:华大一山庄S23 山水堂
视听室尺寸:长10m×宽5.5m×高4m ,面积: 55㎡
资金投入:影音室总资金投入106万(影音设备投入50万元、装修投入30万元)

影院构建过程,声学/光学处理及特别设计
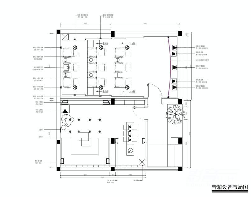
影音室长度为10m,宽度为5.5m,高度为4.5m,影音室设计为三排影院观影。
KlipschTHX-6000-LCR扬声器作为THX系列的一部分,此LCR揭示了电影制片人原本打算的所有原始力量和精细细节。THXULTRA2认证的设备能在大房间的多通道电影和音乐演示中,可以很好地播放参考水平。THX-8000-S专为在家中享受舒适设施带来真正的影院音效而不占用宝贵的地面空间而设计,在隐藏式解决方案扬声器中提供了极致的性能。逼真的声音在听众身边传播,具有令人难以置信的声学再现,当通过这些全新的KlipschProTHX扬声器泵送环绕声时,房屋中的每个座位都能获得电影音频。

在设计THX-1200-SW低音炮时,Klipsch运用了剧院体验,将同样强劲,强劲的低音带入了家中。为了在大型房间中获得强劲的低音效果,THX系列的高性能低音炮具有12英寸长行程Cerametallic驱动器和前置发射端口。它包括一个15磅的电动机结构和一个带有NeutrikSpeakon连接器的20英尺的MonsterTHXUltra电缆。低音炮由外部1KW放大器(KA-1000-THX)驱动,该放大器根据其特性定制,以实现最大的输出和可靠性以及极低的失真。KA-1000-THX低音扬声器是即Klipsch THX Ultra2系统之后有强大驱动力的(产品)。这款产品能在最苛刻的条件下提供坚如磐石的可靠性,让聆听者体验到他们喜爱的音乐以及电影中所有的力量,细节以及情感。

220英寸16:9弧形透声银幕,VPL-XW7000原生4K SXRD激光投影机打在200英寸的银幕上依然颜色与亮出众。VPL-XW7000具有3200流明的亮度和生动色彩增强功能,原生4K激光投影机为您带来耀眼、身临其境造型精美的VPL-XW7000是一款原生4K HDR激光投影机,可以毫不费力地融入当今的生活空间。

设计与调试心得
影音室的色调,蓝色和灰色基调构成了明暗的对比,天花做了四级拱形天花叠叠落差,光影重叠,空间的层次得以充分感受。干练的线条与柔和的弧面产生碰撞。
混响时间,墙面和天花用粗麻墙布硬包,大约40%用了吸音纤维板,60%用不吸音材料,RT60时间控制在0.35s到0.45s之间,沙发背后墙采用了格栅造型,有效地减少前后墙的声波来回反射。兼顾美学与声学的实用。

投影机的持久激光光源可提供给人深刻印象的亮度 - 在明亮的客厅、家庭影院和媒体室,投影的图像也能保持充满活力的效果。先进的4K SXRD面板与新的宽动态范围光学器件和适用于投影机处理器的索尼强大X1 Ultimate 图像处理芯片强强联手。这一切加起来,形成充满活力的真正4K HDR图像,色彩丰富、对比度令人惊叹、动态范围得到扩展,体现了原始内容创作者的意图。
器材列表
投影机:SONY VPL-XW7000
AV放大器:Integra DRC-R1.1前级+Integra DRA-R1后级
主音箱:Klipsch THX-6000-LCR×3
环绕音箱:Klipsch THX-8000-S×6
全景音箱:Klipsch THX-5002-SIN×4
有源超低音:Klipsch THX-1200-SW×2、Klipsch KA-1000THX低音功放
智能设备:Control4 EA-1

※ 影音中国网原创稿件,未经许可不得转载、节录及改编。
※ 致读者:影音CN所刊案例均为设计师投稿。为保障原作者权益,减少盗图纠纷,案例版面图片均已加水印处理。由此可能影响读者的阅读,特表歉意。