
影院构建过程、声学/光学处理及特别设计
本案位于别墅42㎡的地下空间,业主期望能超越传统影音室,令其成为观影、K歌、棋牌与聚会的复合型社交场所。由此,设计团队从一开始就没有打算构建一个“只为观影服务”的影音室,而是以“空间情绪自由切换”为核心,勾勒出一套灵活有序的娱乐系统。
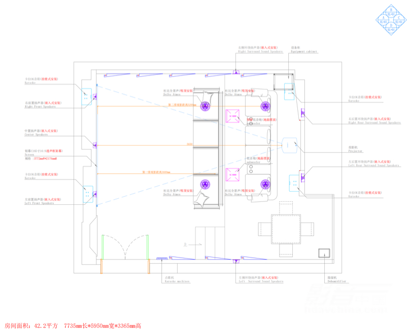
影院配置上,采用7.1.4声道全景声布局,搭配165英寸的透声幕,实现画面与声音的沉浸包围。为了兼顾多人观影体验,观众区通过双层台阶抬升,形成前后两排无遮挡视野。
音箱选用全套Definitive Technology产品,确保音色一致性。比较特别的设计在于,侧环绕选用双极音箱(DI5.5BPS),使得声波扩散更均匀,让前后排听众皆能获得平衡的听感。超低音则借助双层台阶抬升的设计,巧妙隐藏于台阶结构内,既保持视觉整洁,也为未来升级预留了空间。


声学处理上面临多元场景的挑战:电影需沉浸音效,K歌需饱满延展,棋牌区则需控制噪音干扰。地面选用哑光瓷砖,避免光线反射对观影的干扰。墙面施以造型饰面,利用织物面网的覆盖来实现声学效果,既控制了中高频混响,也通过扩散结构优化声场均匀性。

K歌系统为独立配置,4.0声道专业音箱与效果器,确保歌唱时人声清晰、音乐有层次。可以这么说,7.1.4声道全景声影院负责把人稳稳包裹进电影情绪里;4.0声道卡拉OK系统,又让空间瞬间切换回热闹模式时,声音有厚度、有延展。

光学设计强调氛围与功能的结合。观影时采用深色遮光环境,配合屏幕周边暗区处理,强化画面沉浸感;娱乐模式通过局部照明,营造轻松明亮的聚会氛围。棋牌区设置独立柔光照明,既满足牌局所需亮度,也不干扰观影区的暗环境。

特别设计体现在功能融合与动线规划上。棋牌区被抬升布置于空间左后侧,通过台阶自然划分,既保持半开放视觉联系,也减少对前方听音区的声学干扰。所有设备线路均预先埋设,墙面整洁无明线,确保空间在不同模式中能快速转换,实现“娱乐共存而不互扰”。


设计与调试心得
设计之初即明确本空间不应是单一功能的“黑盒子”,而需具备容纳多元生活场景的弹性。设计师以“视听核心、分区共存”为原则,通过抬升、错落等手法,在开放空间中界定出不同功能区域,使观影、K歌、棋牌三者既能独立运行,也可和谐共存。

声学调试是项目重点。因需兼容电影与K歌,分别针对性测量。观影状态下追求标准影院曲线,强调细节与包围感;K歌状态下适当提升中低频厚度,增加混响效果,使歌声更丰满自然。

最终,本案成功超越了业主的期待——它不仅是个专业影音室,更成为真正意义上的“家庭娱乐社交中心”,让每一种娱乐方式都能找到最佳状态,并在需要时自然融合,承载起持续不断的日常欢聚。

设计团队通过空间立体划分(观影区抬升、棋牌区错落)而非硬性隔断,既保持了空间通透感,又自然区隔了不同功能区域,完美解决了“棋牌区融入影音室”的难题。声学上,通过场景化声学设计与独立系统配置,让电影与K歌分别获得最佳音效,实现了“娱乐共存而不互扰”的理想状态。同时,确保各项活动互不干扰,动线流畅便利。

点评
整体而言,这是个高度集成、思维前瞻的综合性娱乐空间解决方案。它证明,只要通过周密规划与专业调试,不同属性的娱乐需求完全可以在同一空间内和谐共生,甚至相互增益。该空间不仅满足了功能上的“全”,更在体验上做到了“悦”,成为一处真正能吸引朋友常聚、激发生活热情的家居亮点,完美诠释了“空间为生活服务”的设计本质。


用户使用需求
设计需兼顾观影、唱歌与棋牌三大娱乐功能,在追求专业级影音效果的同时,也要充分考虑生活动线的日常便利性。
认识设计师
工程师:周培元
设计师:吴晓懿、王涛
设计公司:上海夜色电子科技有限公司(夜色空间)
空间信息与投入
空间尺寸:长7.74×宽5.95×高3.37m,面积42.2㎡
案例位置:上海嘉定柏悦翔湾
资金投入:30万元(音视频设备+声学建造+家居软装)
器材列表
7.1.4声道影院系统
主音箱:Definitive Technology UIW-RLSIII×2
中置音箱:Definitive Technology UIW-RLSII×1
侧环绕音箱:Definitive Technology DI5.5BPS×2
后环绕音箱:Definitive Technology DW-80 Pro×2
天花音箱:Definitive Technology DC-80 Pro×4
超低音:Definitive Technology SuperCube8000×1
AV功放:Denon AVR-X6800H
4K投影机:SONY VPL-XW5000
8K幕布:EliteScreens 165英寸透声框架幕
硬盘播放机:优视加U6-III
卡拉OK:NFZY 4.0卡拉OK+K73

※ 影音中国网原创稿件,未经许可不得转载、节录及改编。
※ 致读者:影音CN所刊案例均为设计师投稿。为保障原作者权益,减少盗图纠纷,案例版面图片均已加水印处理。由此可能影响读者的阅读,特表歉意。