
影院构建过程、声学/光学处理及特别设计
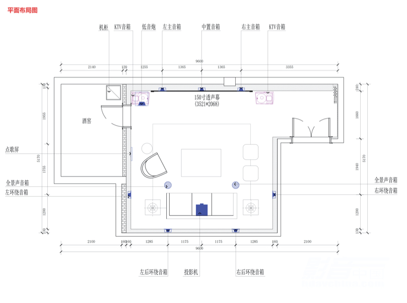
影音室位于别墅负一楼的独立空间,长9.6m、宽5.17m,呈长方形但不规则结构,这给布局划分和声学处理带来显著挑战。赛宾团队通过精细化设计,将不规则空间“切割”为多个规则区域,不仅实现了空间规整化,还提升了功能性和实用性。
构建过程始于定制设备间:在影音室前方预先搭建封闭框架,用于摆放影音器材。这一设计确保器材不接触地面,避免灰尘污染,同时也为150英寸4K透声幕的隐藏安装奠定基础。透声幕后方完美嵌入主音箱,实现声音无损传递,器材完全隐匿于幕后,简化了视觉空间,契合极简美学。



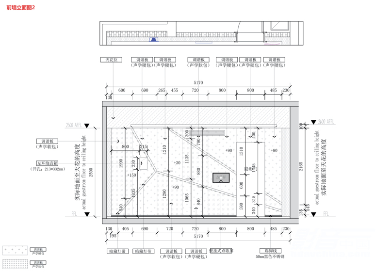
声学处理方面,团队采用多层次策略。前墙设计为格栅结构,其通透性允许主音箱的中高频声波顺畅穿透,避免声音衰减或失真;格栅与幕布后方的声学空腔、吸音棉协同工作,有效吸收低频驻波,优化声场均匀性。侧墙则突破传统,采用几何折线造型,通过高低错落的分割,将墙面从平面转化为立体层次。这一设计不仅增强美学动态感,更在声学上实现声波多向散射,减少驻波和声聚焦,确保多人观影时各座位听觉体验一致。辅助声学措施包括安装专业声学饰面(聚焦中高频吸收)和铺设地毯(弱化地面低频反射),共同构建纯净、均匀的专业声场。


光学处理聚焦于氛围营造。影音室以深邃黑咖色为主调,塑造沉稳奢雅的基调;顶部点缀星空灯,模拟夜幕星光,散发柔和光影;墙面嵌入流动线性灯带,以暖色调勾勒几何轮廓,在观影模式下(微光环境)形成“流动的光轨”,强化沉浸式体验。特别设计还包括隐藏式音响系统——选用Monitor Audio定制安装系列,音箱完全嵌入墙面,与空间融合,避免布线外露,实现简洁大方的布局。宽大柔软沙发搭配现代茶几,兼顾舒适与风格,整体在光影、材质与比例间取得平衡,既具影院级震撼,又保有私享空间的温暖。


设计与调试心得
设计核心,在于平衡“视觉美感”与“声学性能”。面对不规则空间,团队优先进行3D声学模拟,以数据指导布局划分,确保规则区域最大化声学效益。美学上,紧扣“简约轻奢”主题:黑咖色主调赋予空间高级感,线性灯带和星空灯则注入未来元素,避免传统影音室的沉闷。折线墙面设计是亮点——它不仅是美学表达,更通过声学计算优化折角与深度,实现视觉张力与声场均匀的双赢。设备隐藏方案则体现了“形式追随功能”:定制设备间解决实用问题,同时维护极简视觉,让科技无形融入生活。

调试重于细节优化。声学调试中,使用专业仪器测量频响曲线、混响时间,针对低频累积区域(如角落)微调吸音棉分布,并通过格栅空腔调节增强低频控制。折线墙面的散射效果经多次测试,确保声场覆盖均匀,避免“皇帝位”的局限。
光学调试则关注灯带亮度和色温:线性灯带设置为可调光模式,观影时降至微光,营造“氛围结界”;星空灯亮度柔和,避免眩光干扰画面。
设备集成方面,Monitor Audio音箱经精准定位和调校,与透声幕完美匹配,达成“声音从画面中来”的沉浸感。整体调试证明,只有将美学设计与声学工程同步推进,才能实现真正意义上的沉浸式体验。


点评
满足业主追求“视觉美感”与“声学效果”的无缝共生,本案成功将别墅简约轻奢格调延伸至影音空间:通过黑咖主色、星空灯、线性灯带等设计元素,打造出兼具沉稳与未来感的视觉美学,成为家庭美学的有机部分;专业级声学处理确保均匀、纯净的声场,带来影院级震撼音效。设备隐藏和嵌入式设计进一步净化空间,实现“多场景适配”,使影音室既能用于震撼观影,也能作为放松社交的私享领地。


用户使用需求
业主核心诉求,是希望实现“视觉美感”与“声学效果”的无缝共生。既有足以匹配别墅简约轻奢格调的颜值,成为空间美学的延伸;又要具备专业级影音表现和沉浸式享受。
认识设计师
设计师:吴锦贤
工程监理:伦家建
设计公司:广东赛宾科技有限公司
空间信息与投入 空间尺寸:长9.6m,宽5.17m 案例位置:广东南国桃园某别墅 器材列表 7.1.2声道全景声影院系统 主音箱:Monitor Audio W180×3 环绕音箱:Monitor Audio W165×4 天花音箱:Monitor Audio C165×2 超低音:Wharfedale W-15Pro AV功放:安桥TX-NR7100 播放机:视易 A900PLUS 投影机:ViewSonic TB2115K 4K激光 投影幕:施威150英寸4K透声幕 7.2声道KTV方案 点歌机:视易K73(6T) 点歌屏:铂锐21.5英寸 前级效果器:Mark-lin P.1 无线麦克风:Mark-lin F-60D 电源时序器:ABL V-80i 智能中控 Control 4智能主机 Control 4遥控器套装 SED双联网关 SED 8键情景开关×2 户外背景音乐×1套

※ 影音中国网原创稿件,未经许可不得转载、节录及改编。
※ 致读者:影音CN所刊案例均为设计师投稿。为保障原作者权益,减少盗图纠纷,案例版面图片均已加水印处理。由此可能影响读者的阅读,特表歉意。