基本情况介绍
方案实施方类别:影音设计师
案例类别:定制影院
整体资金投入:68万元
视听室空间信息:51平方米
位置及周边概括性描述:多功能影院
用户使用需求:业主是一名对影音有着比较高追求的生意人,希望能打造出一间供家人休闲娱乐的影院,还能满足和朋友一起聚会唱K、品酒的场所。所以在家庭影院的定制上有着非常高的品质和专业要求。该多功能影院配置高级11.2AURO3D影院系统和全智能控制系统,其高端便捷、奢华尊贵的特点,与业主注重生活艺术的品味相符。
设计公司:TECHLAND蓝本影音

设计师:李晓程。从小受家族熏陶对无线电产生浓厚的兴趣,中学年代动手制作的作品获得多次奖项,1994年,尚在大学求学时期,就已经为国内知名的音响行业建造计算机网络及管理系统,也因此与音响行业结下不解之缘。从2002年创办广州市蓝本影音科技有限公司,同年与美国旧金山的合作伙伴一起创立的品牌me2米图,2009年开始正式转向专业定制市场,是专注影音定制的高端品牌。
代表作品:香港首富李嘉诚豪宅影音室、著名导演刘伟强影音工作室、著名艺人曾志伟会所试片室、广州铉声浩乐音响影音室等等。
器材列表
PCA影院音频设备
前置扬声器:me2(米图)PCA12 ×2
中置扬声器:me2(米图)PCA12
环绕声道扬声器:me2(米图)PCA08 ×4
上层前置扬声器:me2(米图)PCA08 ×2
上层前中置扬声器:me2(米图)PCA08
上层天花板扬声器:me2(米图)SWT81 ×2
上层环绕声道扬声器:me2(米图)SWT81 ×4
超低音箱:me2(米图)ST115 ×2
超低音箱:me2(米图)PCA18B ×2
高清音频中心机:DATASAT(AURO 3D)11.1声道高清音频前置控制中心
后级功放机:me2(米图)PDA44 ×3
后级功放机:me2(米图)PDA72 ×2
后级功放机:me2(米图)PDA215 ×2
蓝光播放机:Pioneer(松下)高清蓝光播放器
高清播放器:OPPO 105D
文件服务器:me2(米图)Movie box
电源时序器:me2(米图)AC208 ×2
设备专业机柜:37U 4层板黑色玻璃门带锁专业机柜 ×2
娱乐音频设备
主音箱:me2(米图)KC12J ×2
补声音箱:me2(米图)KC10 ×2
超低音箱:me2(米图)ASW120
后级功放机:me2(米图)MA500 ×2
后级功放机:me2(米图)MA1000
卡拉OK点歌机:me2(米图)KTV4T
数字处理器:me2(米图)S510
无线咪:me2(米图)MW50T
视频设备
高清3D投影机:JVC DLA-XC7890RB
高清3D投影幕:me2(米图)SCR-TF180
灯光系统
光纤星空灯、光源器:SL-DMX45
真彩LED灯带:SL-RGB1260 ×20
真彩LED灯带开关电源:PWAD-1220×5
WIFI智能控制器:SL-WC308
功率放大器:SL-AM308 ×4
智能控制系统设备
家庭控制主机:URC MRX-10
软件授权:URC SETUP-IOS-TC
音频感应器:URC SEN-AUD
无线控制器:LUTRON(路创)PM-3BRL-MAW-L01×2
无线控制器底盒:LUTRON(路创)PFP-1-B-FAW-CPN5692
调光模块:LUTRON(路创)QSGRM-6PCE
前盖板:LUTRON(路创)QSGFP-TWH
无线路由器:TP-LINK无线路由器
智能编程:智能设备编程
影院的构建过程、声学和光学处理及特别设计
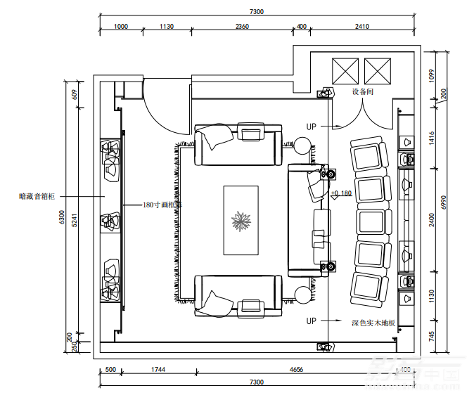
影音室原始结构设计如下图。

平面布局图
业主平时工作忙碌,生活节奏较快,希望家里能有个不被打扰、舒适的娱乐空间,最好是既欣赏到电影大片,也能和亲朋好友欢聚一堂的环境。
为了达到最佳视听效果,设计团队对影音室做了声学装修和处理。且影音室采用了智能控制系统设备,在满足声音、空间美感的要求下,还享受了现代智能带给我们的便捷。
经过影音设计师们的精心调试,影音系统充分在视觉、听觉、操控上带给客户愉悦的享受。充足的环绕声包围感、敏捷的动态表现和澎湃的低音呈现,确保房间每一个位置都能拥有“皇帝位”的视听享受。

音箱分布图

视听室平面图

三维平面图

施工现场图

最终完成效果图
系统调试与设计者心得
业主家中的影音系统,是设计师比较花精力和用心打造的区域。影音室里音响摆放较为复杂,想要最终得到接近标准音效的好影院,前后直达声、左右环绕声等都需要进一步测定、调试。经过多次调试、以及声学模块的调整配合,最终达到了理想的效果。
在影院的设备选用上,为了达到最好的观影效果,我们经过多重的对比,最终选择了JVC的DLA-XC7890RB。

此款4K投影机的主要特点是采用了新世代格式HDR高动态范围影像技术,兼容HDMI标准和HDCP 2.2,分辨率为3840×2160,对比度120000:1,1800流明亮度,快捷镜头记忆。专业超短焦光学镜头,画质通透自然、原生对比度,不使用动态光圈,呈现诱人的画面胶片感。
※ 致读者:影音CN所刊案例均为设计师投稿。为保障原作者权益,减少盗图纠纷,案例版面图片均已加水印处理。由此可能影响读者的阅读,特表歉意。